Liên hệ
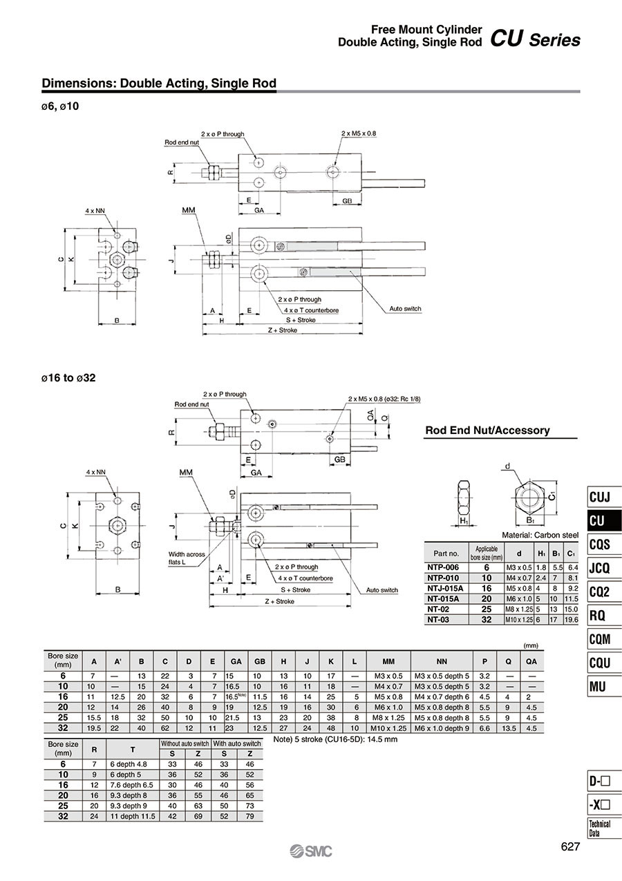
THÔNG SỐ KỸ THUẬT XI LANH SMC CU10 SERIES Xi lanh khí CDU10-10D, CDU10-10S, CDU10-10T, CDU10-12T, CDU10-15D, CDU10-15D-XB13, CDU10-15S, CDU10-15T, CDU10-20D, CDU10-25D, CDU10-30D, CDU10-35D, CDU10-35D-XC19, CDU10-40D, CDU10-45D-XC19, CDU10-5D, CDU10-5D-XB9 , CDU10-5S, CDU10-5T, CDU10-50D, CDU10-55D-XC19, CDU10-60D, CDU10D-E5314-15, CDU10D-E6675-35, CDU10D-E7172-20, CDU10D-E7387-10 Bore size (mm) 6 10 16 20 25 32 Fluid Air Action CU-D Double acting, Single/Double rod CU-S/T Single acting, Single rod, Spring return/extend Minimum operating pressure Double acting 0.12 MPa 0.06 MPa 0.05 MPa Single acting 0.2 MPa 0.15 MPa 0.13 MPa Maximum operating pressure 0.7 MPa Proof pressure 1.05 MPa Ambient and fluid temperature -20 to 80°C (No freezing) Cushion Rubber bumper Lubrication Non-lube Piston rod dia. 3 mm 4 mm 6 mm 8 mm 10 mm 12 mm Rod end thread (male) M3x0.5 M4x0.7 M5x0.8 M6x1.0 M8x1.25 M10x1.25 Port Size M5x0.8 Port size M5x0.8


Bạn đã thêm vào giỏ hàng 